Добро пожаловать на http://vipplan.ru

Випплан Пермь - это тысячи проектов домов в нашем каталоге!

Вы всегда сможете найти для себя проект дома вашей мечты! Даже если этого не случилось, мы готовы в любую минуту предложить проект индивидуального дома.

Забыли пароль?
Вы еще не регистрировались?

Перейдите по ссылке ниже на страницу регистрации.

Регистрация...

Внимание!!!

В проектную документацию могут быть внесены изменения любой сложности, в соответствии в Вашими пожеланиями!

Полезные статьи

Зачем нужен проект дома?

Зачем нужен проект? - спросите вы. Проект дома является важной и неотъемлемой частью при строительстве дома. После покупки проекта, вы получите разрешение на строительство, предоставив его в местную архитектуру, а после, с его помощью, построите дом....

Монолитный коттедж с несъемной опалубкой

Перед тем, как вы задумаетесь о строительстве своего коттеджа, необходимо выбрать, сами вы будете руководить строительством, нанимать разных рабочих, или будете обращаться в строительную фирму, и заключать с ними договор. Но даже к этому вопросу нужно подходить правильно, обдумав все плюсы и минусы выбора....

Проекты домов и коттеджей > Каталог проектов домов > Проект двухэтажного дома c большим гаражом и террасой Vg1322

Проект двухэтажного дома c большим гаражом и террасой Vg1322

Проект двухэтажного дома c большим гаражом и террасой
Зарегистрируйтесь

Проект № Vg1322


Техническое описание
Общая площадь: 275.94 м2
Жилая площадь: 129.4 м2
Высота здания: 9.58 м
Размеры дома: 21.26м×19.88м
Кол-во комнат: 6
Цокольный этаж: нет
Гараж: нет
Мансарда: нет

Kонструкция
Фундамент: Ленточный из блоков ФБС
Перекрытия: Ж/б плиты
Материал стен: Газобетон

Архитектурный раздел
Конструктивный раздел
АР+КР - 72 000 (Со скидкой 20%)
Проект индивидуального двухэтажного жилого дома с размерами здания 21,26 х 19,88 м. Наружная отделка здания – облицовочный кирпич. Фундамент – ленточный из блоков ФБС (под несущими стенами). Наружные стены – газобетонные блоки, утеплитель - экструдированный пенополистирол, воздушный зазор, отделка - облицовочный кирпич Внутренние стены - газобетонные блоки. Перегородки – кирпич . Пол 1 этажа - пол по грунту. Межэтажное перекрытие – ж/б плиты.Чердачное перекрытие - деревянные балки. Крыша - металлочерепица. Кровля – четырехскатая. Окна - металлопластиковые, выполненные по индивидуальному заказу.
Генплан застройки участка / Паспорт проекта 7000 руб / 10000 руб
Инженерный раздел (полный) 138000 руб
Смета на строительство 69000 руб
Теплотехнический расчет материалов стен Бесплатно
Стоимость проекта со незначительнми изменениями 83100 руб
Стоимость проекта со средними изменениями* 103800 руб
Стоимость проекта со значительными изменениями** 109300 руб

План первого этажа


Гараж — 50,50 кв м
Бойлерная — 11,17 кв м
Кладовая — 8,70 кв м
Кабинет — 15,34 кв м
С/у — 4,84 кв м
Холл — 17,98 кв м
Тамбур — 4,90 кв м
Крыльцо — 3,50 кв м
Кладовая — 2,62 кв м
Кухня — 15,22 кв м
Гостиная — 35,67 кв м

Проект двухэтажного дома c большим гаражом и террасой

Проект двухэтажного дома c большим гаражом и террасой

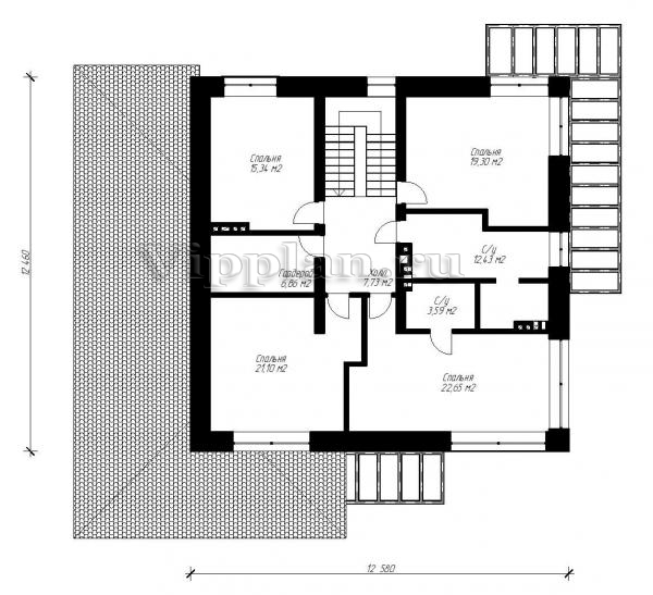
План второго этажа


Спальня — 15,34 кв м
Спальня — 19,30 кв м
С/у — 12,43 кв м
С/у — 3,59 кв м
Холл — 7,73 кв м
Гардероб — 6,86 кв м
Спальня — 21,10 кв м
Спальня — 22,65 кв м
Проект двухэтажного дома c большим гаражом и террасой Проект двухэтажного дома c большим гаражом и террасой Проект двухэтажного дома c большим гаражом и террасой Проект двухэтажного дома c большим гаражом и террасой

Модификации проектов

Внесение изменений и привязка к участку строительства

В любой из проектов от компании VIPplan - Пермь по вашему желанию могут быть внесены изменения в материалы стен, материалы наружной отделки дома, а также будет произведена адаптация проекта под конкретный регион строительства (с учетом грунтов региона, геологических особенностей вашего участка и местных климатических условий) - БЕСПЛАТНО !!! (кроме проектов со скидкой и проектов наших партнеров).

Любой из проектов, размещенных на сайте perm.vipplan.ru мы можем выполнить из требуемых вам строительных материалов: ячеистый бетон (газобетон, пеноблок), керамоблок, кирпич, шлакоблок, бетонный блок, дерево (брус, клееный брус), каркасная технология (деревянный каркас, металлокаркас (ЛСТК)).

Фасад дома и его наружную отделку так же возможно выполнить с применением различных облицовочных материалов: структурной штукатурки, (с утеплителем и без), сайдингом (пластиковый или металлосайдинг), фиброплитами, кирпича.

 
6 Избранные
проекты

Доставка проектов по России: Москва (Московская область), Санкт-Петербург (Ленинградская область), Краснодар, Ростов-на-Дону, Ставрополь, Сочи, Волгоград, Новосибирск, Белгород, Брянск, Воронеж, Саратов, Хабаровск, Астрахань, Нальчик, Владикавказ, Екатеринбург, Тюмень, Самара, Нижний Новгород, Казань, Пермь, Уфа, Челябинск, Красноярск, Ханты-Мансийск, Иркутск, Курган, Оренбург, Омск, Томск, Барнаул, Новокузнецк, Кемерово, Абакан, Чита, Якутск, Южно-Сахалинск, Петропавловск-Камчатский и страны ближнего зарубежья: Белоруссия, Украина, Казахстан